Descrizione
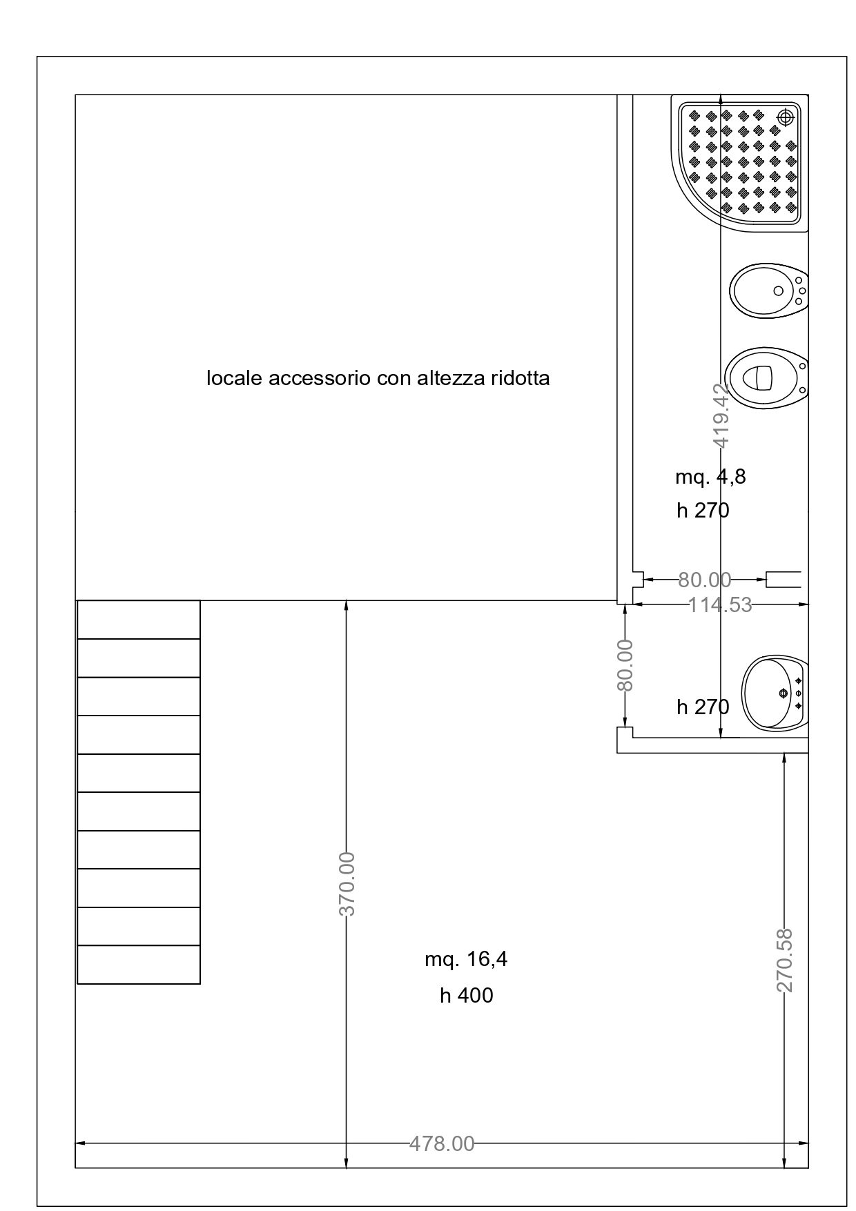
In via Piccardi 47 proponiamo in vendita appartamenti di nuova realizzazione, situati al primo piano di uno stabile privo di ascensore. Le unità, di circa 55 mq, sono concepite come moderni monolocali caratterizzati da ambienti funzionali e ben distribuiti, con zona giorno luminosa, cucina a vista, bagno e zona notte soppalcata, soluzione ideale per ottimizzare gli spazi e garantire comfort abitativo.
Gli immobili sono in fase di costruzione e saranno dotati di riscaldamento autonomo ad aria con pompa di calore caldo/freddo, assicurando efficienza energetica e gestione indipendente dei consumi. È inoltre disponibile la possibilità di acquistare un box auto sotto l’abitazione.
APE in fase di certificazione
Le immagini presenti sono rendering realizzati a scopo esclusivamente illustrativo e di marketing.
Prezzo: a partire da €130.000












